● Profile: 6063-T5 raw aluminum material
● Wall thickness: 1.4 mm
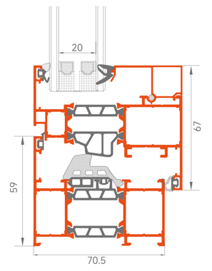
● Border width: 70.5 mm
● Fan width: 67 mm (including pressure line)
● Glass standard: double-layer tempered hollow 5 mm + 20 A + 5 mm
● Glass notch: 36.5 mm
● Insulation strip width: 30 mm
● Sealing strip: EPDM sealing strip
● Process treatment: Fluorocarbon spraying process
● Product Color: Fluorocarbon Grey, Skin Black, Skin White, Fluorocarbon Coffee






